Готовая санитарная зона для частного производства: эстетика, долговечность и гигиена
Наш заказчик — современный завод-производитель упаковки в Солнечногорске — поставил задачу: создать для сотрудников не просто бытовку, а комфортную, гигиеничную и максимально долговечную санитарно-бытовую зону.
Результатом стал готовый санитарный модуль «под ключ», в котором каждая мелочь продумана для интенсивной эксплуатации в промышленной среде. Этот кейс — пример превращения стандартного контейнера в санитарную зону для персонала.
Конструктив премиум-класса: нержавеющая сталь и эффективная изоляция
Основой объекта стал энергоэффективный контейнер из сэндвич-панелей (серия МЛ) заводской готовности толщиной 100 мм с сердечником из базальтовой плиты. Это гарантирует сохранение тепла и снижение затрат на отопление. Однако главная «фишка» — облицовка стен изнутри и снаружи нержавеющей сталью.
Это решение использования заводской сэндвич-панели (металл-базальт-металл) не просто придает объекту солидный внешний вид, но и обеспечивает абсолютную устойчивость к коррозии, влаге и механическим повреждениям, что критически важно для влажных помещений.
Комплексное оснащение «под ключ»
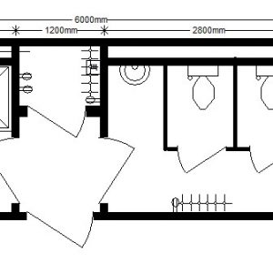
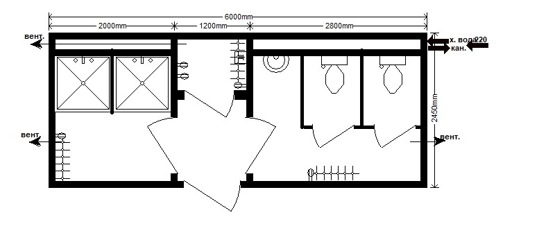
Внутри модуль разделен на зоны: туалеты и душевые. Вся сантехника (унитазы, раковины на пьедестале, душевые поддоны) также выполнена из гигиеничной нержавеющей стали. Особое внимание уделено инженерии: вся разводка труб скрыта в отдельном техническом коридоре, что обеспечивает эстетику, легкий доступ для обслуживания и защиту коммуникаций от внешних воздействий.
Для подобной продукции – это уникальное решение, спроектированное совместно с заказчиком для этого модуля. Электрика и отопление уже подключены и готовы к работе.
Детали, которые имеют значение
Каждая мелочь в этом проекте работает на комфорт, безопасность и долгий срок службы:
-
Пол из рифленого алюминиевого листа (долговечность и не скользкое покрытие).
-
Межкомнатные двери ПВХ маятникового типа с усиленной накладкой из нержавеющей стали (выдерживают активную проходимость).
-
Внутренняя высота 2,28 м создает ощущение простора.
-
Защитный козырек над входной дверью.
Итог: Мы реализовали для заказчика не просто объект, а готовое, полностью автономное решение: санитарный модуль, готовый к подключению к сетями и многолетней безупречной службе на территории любого промышленного предприятия.
Если вас интересуют санитарные модули для своих целей, рекомендуем изучить наши примеры готовых объектов, а также каталог продукции.








